Zum Inhalt springen
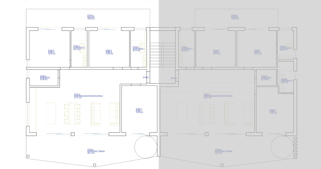
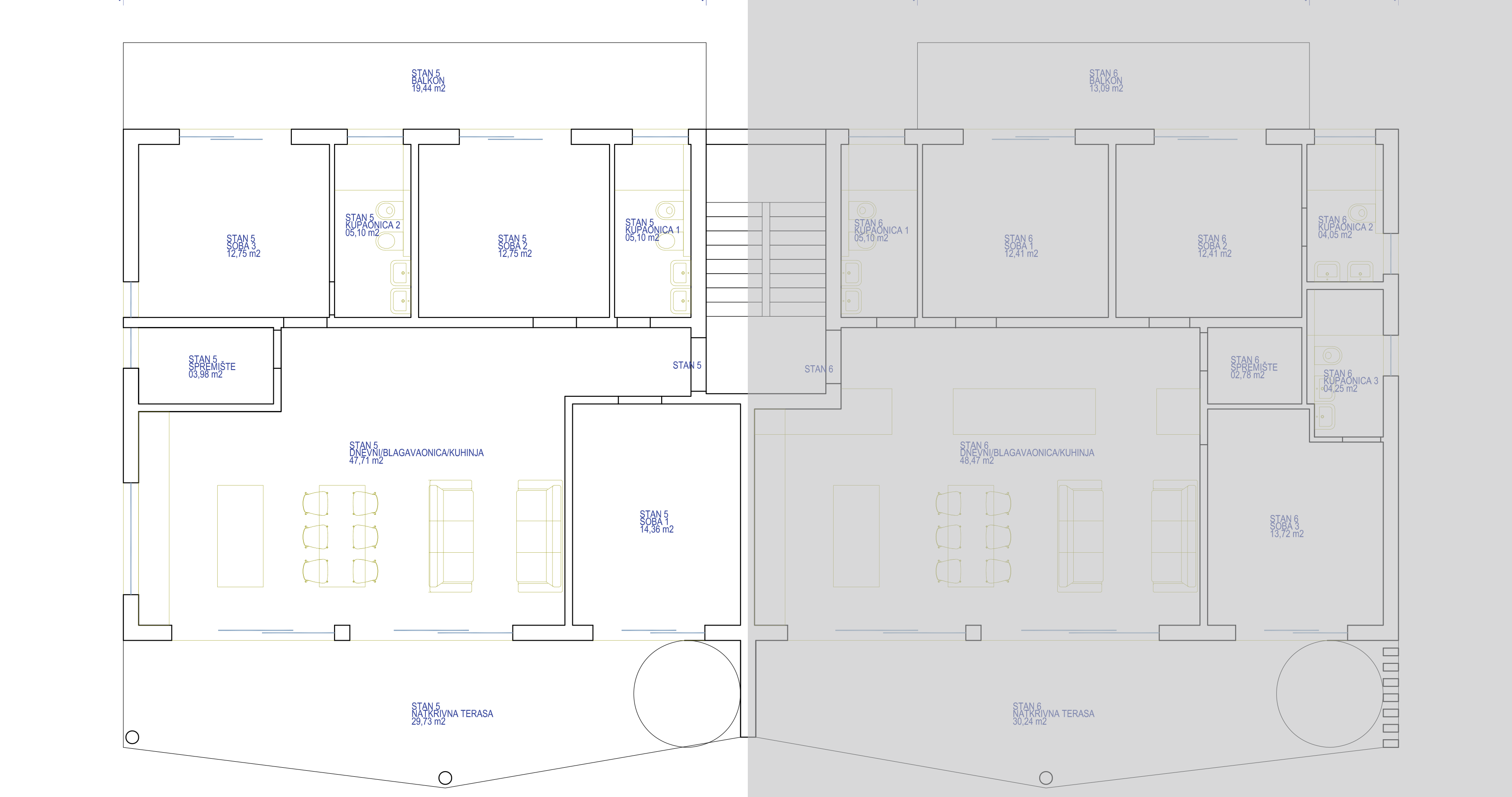
Penthouse S5
Floorplan S5
Plan roof
Apartment S5